Manzano – Immobile commerciale con possibilità di cambio destinazione d’uso.

    65.000,00 €

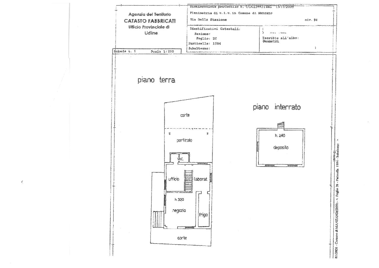
    Via Stazione 94 Manzano
    • Rif. Immobile: 8331
    • Post aggiornato: 2026-03-28 09:52:02
    • Bagni: 1
    • Piano: Terra
    • Livelli: 1
    • Superficie: 80 m²
    • Superficie del terreno: 30 m²
    • Stato:
    • Tipo:
    • Riferimento: MANZ9
    • IPE: In definizione

    Descrizione

    A Manzano in via Stazione nr.94, proponiamo in vendita un’immobile commerciale con un potenziale residenziale e spazio esterno coperto.
    Posizionato in zona semicentrale, in una via di forte passaggio e provvista di servizi, l’immobile era precedentemente adibito a rinomata attività di macelleria. L’acquisto è un’opportunità imperdibile per imprenditori o investitori che cercano una soluzione versatile e ricca di potenzialità.
    L’immobile se mantenuto ad uso commerciale è perfetto per avviare un’attività che abbia bisogno di ampie vetrate e un ambiente spazioso e luminoso, con possibilità di frazionamento interno.
    L’opzione più appetitosa è la possibilità di conversione in una unità abitativa (appartamento bicamere biservizi) grazie alla metratura disponibile (80 mq interni circa, 116 mq catastali).
    L’immobile è provvisto di uno scoperto sul retro con ampia tettoia che attualmente funge da posti auto coperti.
    Questo immobile rappresenta un “foglio bianco” pronto ad accogliere qualsiasi progetto. Non lasciarti sfuggire questa occasione ad un prezzo accessibile! Info in Agenzia.

    Classe energetica in fase di rilascio

    Scheda completa in PDF

    Caratteristiche

    Caratteristiche:
    • Piano terra
    • Posto auto coperto
    • Riscaldamento autonomo
    • vetrinato
    Servizi Accessori:
    • Riscaldamento autonomo